Продажа помещения свободного назначения
29 500 000 ₽
217 552 ₽ за м²
- 136 м²
- Площадь
- 1/9
- Этаж
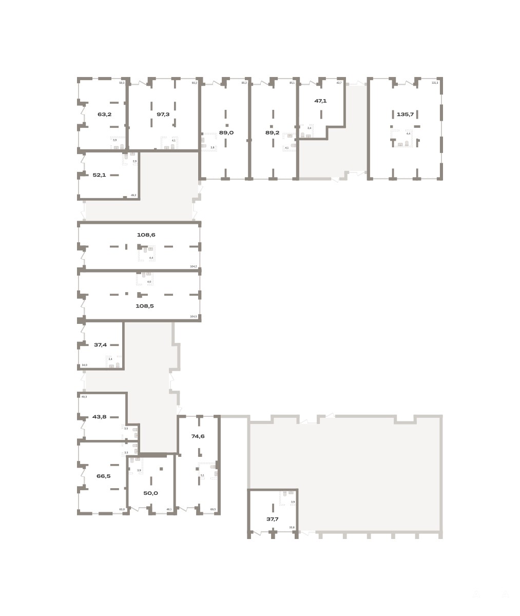
Помещение свободного назначения на 1 этаже, общая площадь 135.6 кв.м., без отделки. Стоимость помещения 29, 500, 000 руб., цена за кв.м 217, 551 руб.
Квартал «Авиатор» расположен на пересечении улицы Аэропорт и Мочищенского шоссе, рядом с остановками «Байкальская», «Жуковского» и «Городской аэропорт», в 7 минутах ходьбы от сквера им. Чаплыгина и 10 минутах от крупной транспортной магистрали — Красного проспекта.
До станции метро «Заельцовская» и площади «Калинина» — около 10 минут на автомобиле. Квартал связан выездами с Мочищенским шоссе, улицами Жуковского, Аэропорт и Георгия Колонды. Сформированная инфраструктура локации — школы, детские сады, магазины, спортивный стадион — делают жизнь в квартале комфортной.
Квартал состоит из восьми домов. Вдоль улицы Аэропорт расположено 6-18-этажное здание с видовыми квартирами. Оно защищает внутреннее пространство от шума и пыли. В центре — четыре 7-9-этажные урбан-виллы. Для них характерны увеличенная площадь квартир, повышенная приватность и малое соседство (30 — 40 квартир). Завершают комплекс два полузакрытых блока высотой 8-16 этажей с фасадами фисташкового цвета и подземной парковкой. Благодаря переменной высотности застройка приобретает человеческий масштаб, во дворы проникает больше света, а число квартир, из которых открывается красивый вид, значительно увеличивается.
Первые этажи вдоль Мочищенского шоссе и улицы Аэропорт мы отдали под полезные сервисы и магазины. Активный фронт позволил интегрировать квартал в городской контекст. На территории «Авиатора» расположен многофункциональный спортивный комплекс с открытым амфитеатром, который станет центром притяжения всего района. (AQID02560736)
Дата обновления: 16 апреля 2026