Продажа помещения свободного назначения
72 000 000 ₽
219 801 ₽ за м²
- 328 м²
- Площадь
- 2/30
- Этаж
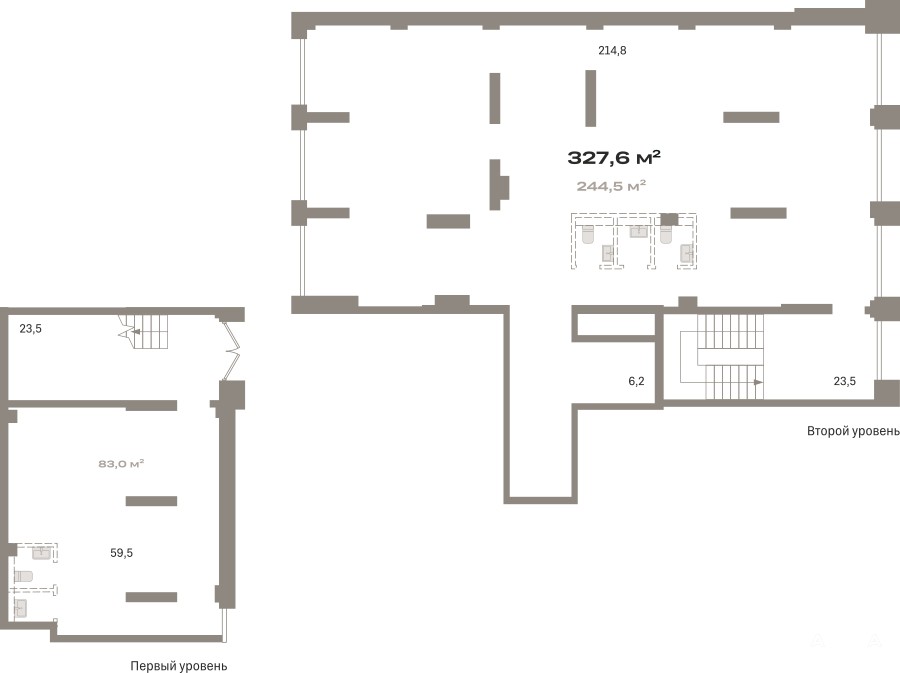
Помещение свободного назначения на 2 этаже, общая площадь 327.57 кв.м., без отделки. Стоимость помещения 72, 000, 000 руб., цена за кв.м 219, 800 руб.
СРОК СДАЧИ - 3 КВАРТАЛ 2024
Продается коммерческое помещение в Квартале «Мылзавод»
1, 2 тыс. человек
Перспективное количество жителей первой очереди
12 тыс. человек
Количество жителей в радиусе пешеходной доступности
3, 3 Га
Площадь застройки
43 тыс. м²
Площадь жилья в первой очереди
Квартал «Мылзавод» состоит из двух 9-этажных урбан-вилл, четырех 17-этажных и трех 30-этажных башен, объединенных стилобатом. проект расположен в центре города в границах улиц Некрасова, Каменская, Писарева и Семьи Шамшиных.
Зона ритейла занимает два этажа стилобата. В отличие от других проектов компании, ее активный фронт (вывески, витрины, летние террасы) обращен не на улицу, а внутрь застройки. Здесь Брусника организует общественное пространство с площадью, фонтаном и пешеходной аллеей. Оно будет доступно всем жителям города.
Проектом предусмотрены офисные и коммерческие помещения от 21 до 498 кв. метров. Они подойдут для кофейни, ресторана, цветочного магазина, продуктового супермаркета или небольшой пекарни.
Технические параметры:
Цементно-песчаная стяжка пола и выровненные оштукатуренные стены
Высота первого этажа 3, 3 метра, второго - 3 метра
Предусмотрено место для вывески
Витражное остекление
Инженерные коммуникации: водоотведение, канализация, электричество. (AQID02549588)
Дата обновления: 19 марта 2026