Продажа помещения свободного назначения
35 960 000 ₽
215 938 ₽ за м²
- 167 м²
- Площадь
- -2/6
- Этаж
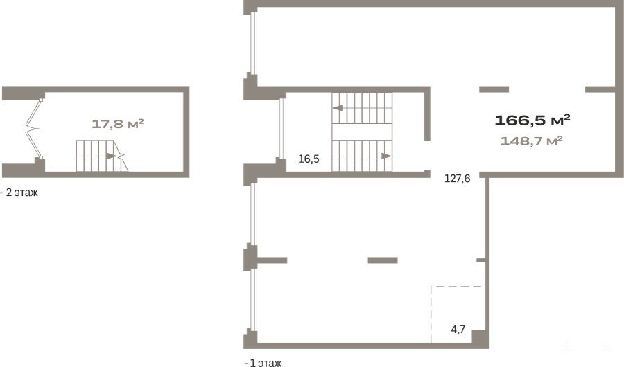
Помещение свободного назначения на -2 этаже, общая площадь 166.53 кв.м., без отделки. Стоимость помещения 35, 960, 000 руб., цена за кв.м 215, 937 руб.
СРОК СДАЧИ - 1 КВАРТАЛ 2025
ЕСТЬ СДАННЫЕ
Продается коммерческое помещение в Микрорайоне «Евроберег»
13 000 человек
Перспективное количество жителей жилого района
11 000 человек
Количество жителей в шаговой доступности
34 Га
Площадь застройки
310 000 м²
Площадь жилья
«Европейский Берег» — проект комплексного развития территории на берегу Оби. За 5 лет в микрорайоне построено 29 домов, в которых проживает 3700 семей. Этажность домов в микрорайоне варьируется, в закрытых кварталах переменной этажности от 6 до 17 этажей, есть и отдельно стоящие башни, в которых от 17 до 25 этажей. Каждая группа домов — самодостаточная, здесь есть зелёные внутренние дворы, общественные пространства, на первых этажах — магазины и полезные сервисы. Вдоль всего района, параллельно с набережной, пройдет приятная живая улица с ритейлом. Она выступает в качестве центральной оси и соединит две площади между собой.
Технические параметры:
Цементно-песчаная стяжка пола и выровненные оштукатуренные стены
Высота потолков от 3 метров
Отдельный вход в каждое помещение
Предусмотрено место для информационно-рекламной вывески
Витражное остекление
Инженерные коммуникации: водоотведение, канализация, вентиляция, электричество. (AQID02549857)
Дата обновления: 9 апреля 2026