Продажа 2х-комнатной квартиры
Золотая Нива, 24 мин
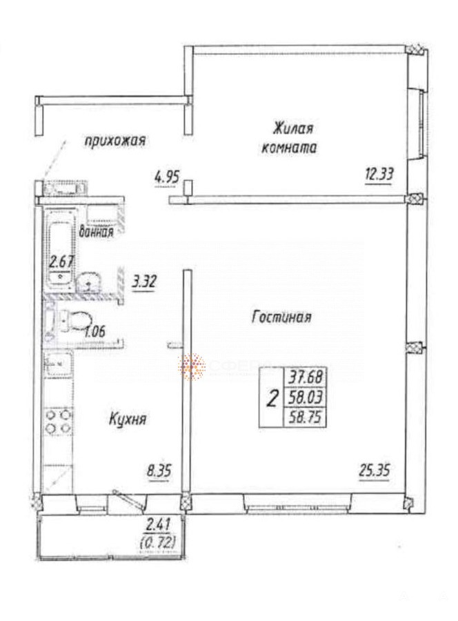
- 58 м²
- Площадь
- 26 м²
- Жилая площадь
- 9 м²
- Площадь кухни
- 3/10
- Этаж
4 390 000 ₽
75 690 ₽ за м²
ID объявления 12231262
Поделиться
Добавить в избранное
В продаже полноценная двухкомнатная квартира в перспективном районе!
Ключи получены, регистрируем право собственности!
Квартира с эргономичной планировкой, под самоотделку, с застекленным балконом.
Основные преимущества:
- эргономичная планировка;
- балкон застеклен;
- перспективный район: в ближайшем будущем планируется строительство метро!
- развитая инфраструктура: в пешей доступности новая школа, детские сады, магазины Мария-ра, Лента, аптеки, парикмахерские, ТЦ Панорама и др.
- удобная транспортная развязка;
- остановка общественного транспорта в двух минутах от дома.
Показ в удобное время! Помощь в получении ипотеки. Не упустите свой шанс на комфортную жизнь в новом районе! Звоните для получения дополнительной информации!
Арт. 125797149
Дата обновления: 17 ноября 2025