Аренда помещения свободного назначения

Новосибирская область, Новосибирск, Вокзальная мгстр, 6А

39 150 ₽/мес

1 450 ₽ за м²/мес.

27 м²
Площадь
2/3
Этаж

Поделиться

Добавить в избранное

ВАРИАНТ БЕЗ КОМИССИИ ДЛЯ АРЕНДАТОРА!
Предлагаем в долгосрочную аренду нежилое помещение административного назначения/офис на 2 этаже 3-х этажного здания Торгово-офисного комплекса по ул.Вокзальная магистраль (Железнодорожный район города Новосибирска).
*Возможный вид использования: торгово-выставочный зал и офис торговой компании, офис для размещения сотрудников организации на 3-4 рабочих места, обособленный офис отдела продаж для работы с клиентами, интернет-магазин и склад/пункт выдачи заказов интернет-магазина; *оказание услуг населению в области красоты и здоровья - студия красоты, нейл-студия, косметология, студия депиляции, студия для работы массажиста.
*Локация: здание комплекса, расположено на 1 линии улицы Вокзальная магистраль, недалеко от перекрёстка с улице Ленина, поблизости от комплекса зданий вокзала Новосибирск-Главный, в центральной части Железнодорожного района города; *Прекрасная транспортная инфраструктура и доступность: рядом расположена станция метрополитена Площадь Гарина-Михайловского (1/2 мин.пешим ходом), комплекс зданий Железнодорожного вокзала Новосибирск-Главный, Транспортно-пересадочный узел Вокзал-Главный, Автовокзал междугородних перевозок, остановки общественного транспорта, в шаговой доступности ТЦ Апельсин, гостиница Маринс Парк Новосибирск, магазины/супермаркеты, различные предприятия сферы обслуживания и общепита, которые позволяют генерировать значительный пешеходный и автомобильный трафик.
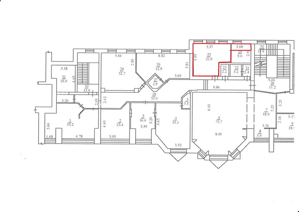
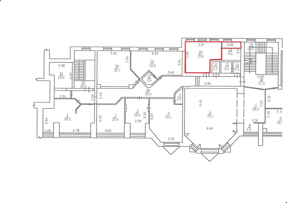
*Блок помещений расположено на 2 этаже Торгово-офисного комплекса, в офисной части здания, оборудован общей входной группой (вход с фасада) и лестничным маршем на 2 этаж, так же, возможно предоставление места на фасаде здания для установки конструкции вывески компании- арендатора.
*Общая площадь помещений - 27, 0 м2, планировочное решение: общая входная группа на 1 этаже здания, лестничный марш на 2 этаж, общий коридор на этаже, помещение свободной планировки с панорамными окнами и отдельный санузел, высота в помещении - 3, 2 метра.
Инженерные сети и коммуникации: выделенная электрическая мощность - до 10, 0 кВт, центральное отопление, водоснабжение/водоотведение, смонтирована общая система вентиляции и кондиционирования, установлена пожарная/охранная сигнализация и интернет линия.
*Техническое состояние помещения: выполнен качественный ремонт - пол - керамический гранит, стены - износоустойчивая, декоративная штукатурка, потолок - 2-х уровневый подвесной со встроенными светильниками.
*Ставка аренды - 1.450, 0, 0 руб/м2, дополнительно оплачиваются эксплуатационные и частично коммунальные расходы: водоснабжение/водоотведение и электроэнергия (фактическое потребление по приборам учёта).
*Существенные условия Собственника: требуется обеспечительный платёж (депозит) за 1 месяц аренды.
*Существенные условия для арендатора: предоставляются арендные каникулы (по согласованию с Собственником и при условии выполнения работ по перепланировке и ремонту помещения).
Собственник помещения: юридическое лицо (налоговый режим - НДС).




Номер объекта: #5/537029/14393

Дата обновления: 26 сентября 2025